DOMUM
Características

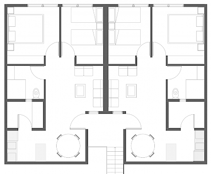
Planta Baja

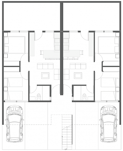
Planta Alta


El conjunto de 6 casas (primera etapa) se desarrolla a las afueras de la población de Zapotiltic vecina geográficamente al municipio de Cd. Guzmán. La mayoría de la población ofician actividades agrónomas.
Cada inmueble se desplanta sobre un área de 90m2 en un fraccionamiento horizontal de vivienda unifamiliar.
Uno de los objetivos fueron identificar el mercado al cual estaba dirigido, es a partir de eso la selección de un sistema constructivo tradicional y materiales típicos de la arquitectura de la región, entre los que destacan el uso del ladrillo o tabique, todo esto dentro del presupuesto establecido. Otro de los objetivos fue la dignificación de la vivienda mediante espacios interiores iluminados, privacidad de los espacios, utilizando elementos de postigos de madera de pino y celosías de material, el resultado una fachada plástica donde el conjunto de las seis casas trabaja como una unidad.


