EDIFICIO ARGENTINA
Vivienda Vertical
Características
Año
2020
Colaboración
Beatriz Mora, Fernanda Torres, Stefania Pelayo, Jessel Parra
Proyecto
Arquitectura
Ubicación
Guadalajara, Jalisco
Zoonificación
Planta de Conjunto

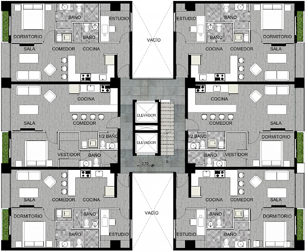
Planta Arquitectónica
Nivel -2

Nivel -1

Planta baja

Nivel 1 - 4

Nivel 5

Nivel 6

Nivel 7

Nivel 8

Volumetría
Estacionamiento

Planta Baja

Nivel 1

Nivel 2 - 4

Nivel 5

Nivel 6

Nivel 7

Nivel 8

Isométrico

Volumetría


